Projekte


Sozialer Wohnungsbau Dresden

       



Offenes Verfahren 

Zuschlag

Ort

Schäferstraße 38, 01067 Dresden

Auslober

WiD Wohnen in Dresden GmbH & Co. KG

Kategorie

Wettbewerbe    Wohnungsbau

Beschreibung

zur Projektseite

Sozialer Wohnungsbau Dresden

Perspektive Schäferstraße / Institutsgasse

Sozialer Wohnungsbau Dresden

Schnitt / Hofansicht

Sozialer Wohnungsbau Dresden

Fassadenkonzept

Sozialer Wohnungsbau Dresden Rohbau

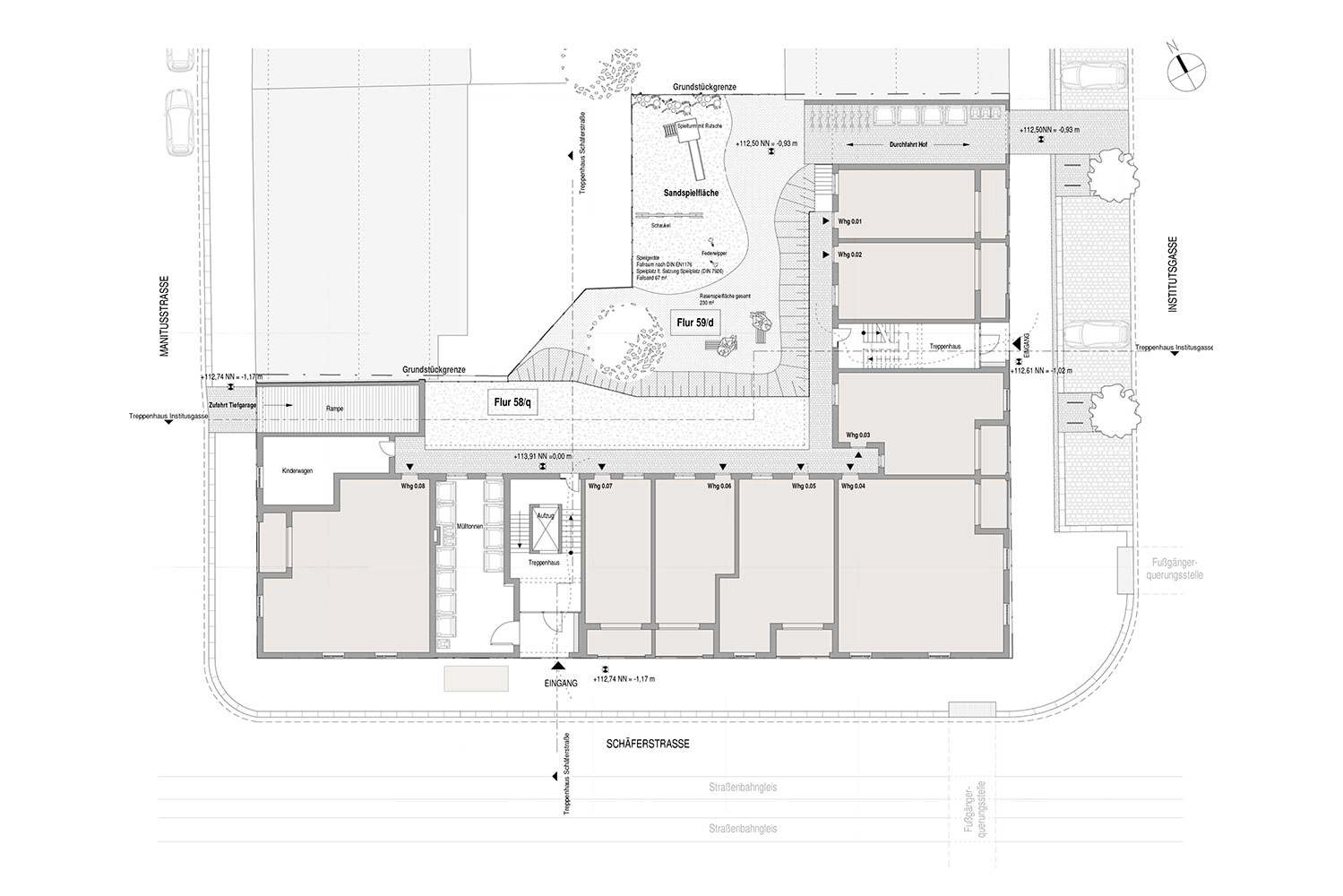
Lageplan


ähnliche Projekte

Wettbewerbsvisualisierung

Fahrradparkhaus

Wettbewerbsvisualisierung

Sozialer Wohnungsbau

Wettbewerbsvisualisierung

Wohnungsbau

Wettbewerbsvisualisierung

Schillerhort

Wettbewerbsvisualisierung

DAS 100